Архитектурно-Строительная Компания
Главная
Вы – счастливый обладатель земельного актива, который хотите «пустить в дело»: продать в розницу участки без подряда, построить коттеджный поселок, турбазу, апарт-отель или экоферму. Какие шаги придется сделать на этом пути и с чего начать?
Вариант 1. Вы точно знаете, какой объект хотите видеть на своем участке, и уверены в своих решениях. В этом случае рекомендуем следующий порядок действий, если назначение земли соответствует выбранному типу объекта и не выявлены обременения:
Дальнейшие действия зависят от типа объекта, категории земли и вида ее разрешенного использования (ВРИ).
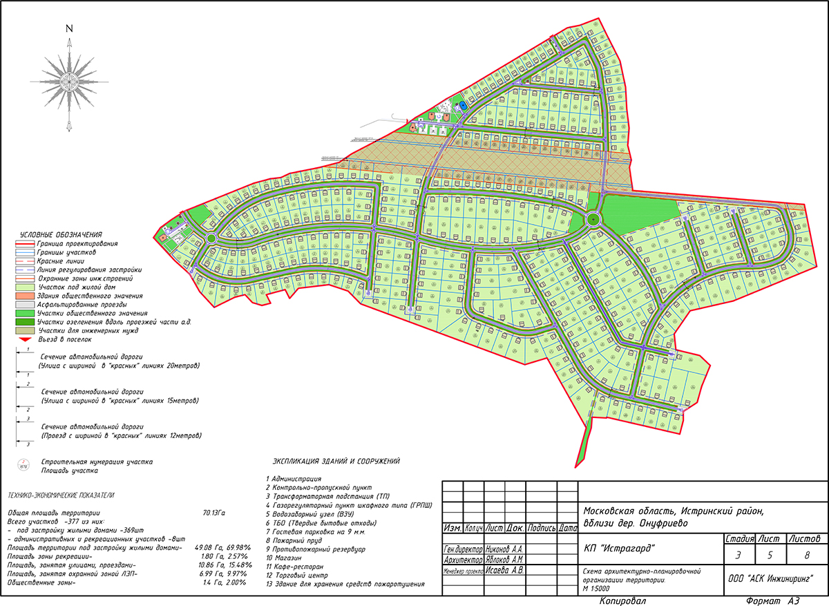
Для дачных и садовых поселков, продающихся без подряда, достаточно будет размежевать землю по схеме генплана и начать реализацию участков. Параллельно разрабатываются проекты сетей и дорог. Для коттеджных поселков, расположенных на землях поселений с ВРИ ИЖС потребуется разработка проекта планировки территории (ППТ) и проекта межевания территории (ПМТ).

Вариант 2. Вам трудно сделать выбор в пользу какого-то одного типа объекта, вы не уверены в своих решениях, у вас остаются вопросы и сомнения. В этом случае рекомендуем начать с экспертного анализа участка и инвестиционной привлекательности землеотвода и заказать маркетинговую концепцию и бизнес-план предполагаемого объекта в нескольких вариантах для оценки эффективности каждого из них, после чего выбрать форму реализации проекта, далее следовать пунктам варианта 1.
Мы оказываем полный спектр услуг непрофильным инвесторам в землю и застройщикам территорий по самым привлекательным ценам. У нас вы можете заказать:

Вы – председатель СНТ, ДНП или представитель управляющей компании дачного поселка. Ваш объект давно размежеван и «живет своей жизнью», однако администрация района требует предоставить документы градостроительного регулирования – ППТ (проект планировки территории) или ПОЗТ (проект организации застройки территории), а у вас их нет и никогда не было.
Что делать и с чего начать?
У нас вы можете проконсультироваться по вопросам получения КПТ, а также заказать все этапы ППТ – от эскиза планируемого развития территории до полного пакета документов проекта планировки территории.

Вы – обладатель непрофильного земельного актива, который давно уже превратился в пассив, тянущий деньги на его содержание. Продать участок оказалось непросто. Что же делать с ним дальше?
Мы помогаем землевладельцам в решении этих вопросов. У нас вы можете:
Начинающие девелоперы и застройщики коттеджных поселков при реализации проекта нередко сталкиваются со следующей ситуацией: экономика проекта по факту кардинально отличается от расчетных показателей бизнес-плана, причем в худшую сторону:
Ошибки встречаются даже у опытных и известных девелоперов.
Рассмотрим типичные и самые частые ошибки в проектных решениях генпланов поселков, влияющие на покупательский спрос и экономику проекта.

В сегодняшней нелегкой рыночной ситуации любая ошибка загородного девелопера может обернуться провалом всего проекта коттеджного или дачного поселка. Вот почему еще на предварительном этапе реализации объекта важно перестраховаться и заложить в проект возможность внесения корректировок на любом этапе.
Приведем чек-лист: что важно учесть при реализации проекта коттеджного поселка.
Все эти нюансы необходимо учитывать еще на стадии разработки концепции, тогда у вас будет возможность исправить проект или внести в него изменения практически на любой стадии реализации!
Заказать правильный генплан поселка без переплат вы всегда можете у нас! Опыт в коттеджном строительстве – 18 лет!